Skip to main content
English
Deutsch
Projekte
Atelier
Kontakt
Videos
TYP
Arbeiten
Bildung
Corporate Identity
Denkmalschutz
Interieur
Kunst
Städtebau
Wohnen
STATUS
Aktuell
Projekt
Realisiert
Wettbewerb
YEAR
70
80
90
00
10
20
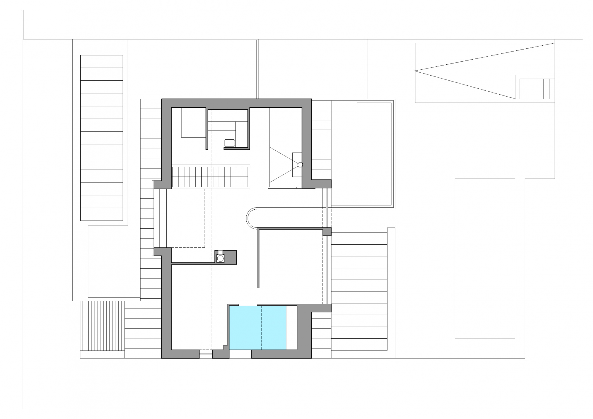
HAUS IN BREITENBRUNN
7091 Breitenbrunn
2011 - 2013
TEXT
FOTOS
PLÄNE
Ansicht wechseln